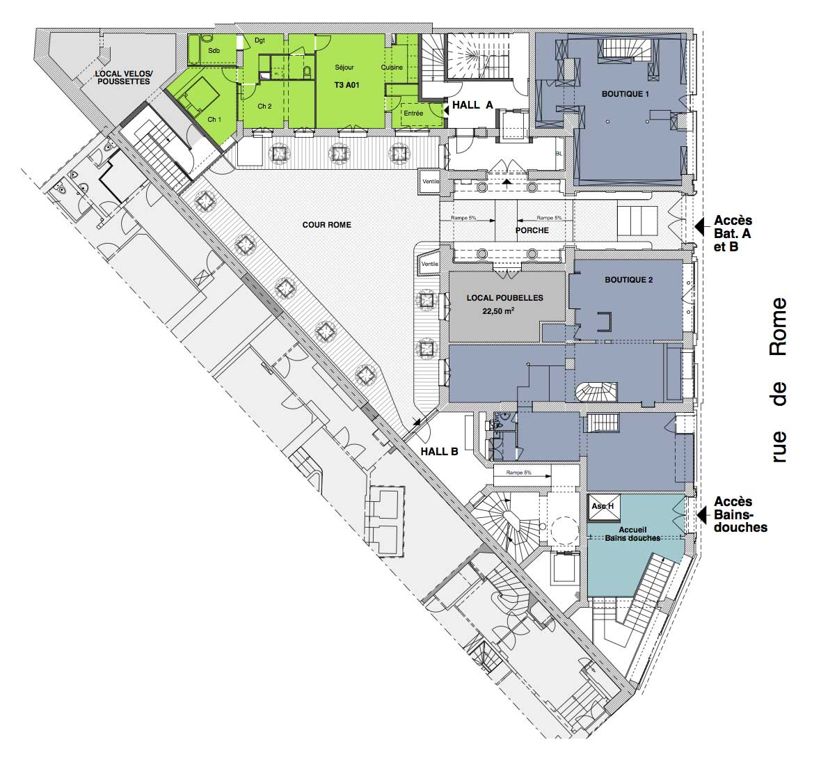
37 LOGEMENTS ET BAINS-DOUCHES EN RÉNOVATION LOURDE À PARIS

Transformation d’un immeuble Haussmannien de bureaux en immeuble de logements collectifs sociaux, avec implantation en rez-de-chaussée et sous sol d’un ERP municipal de bains-douches.

LIEU : 43-45, rue de Rome, 75017 Paris

ARCHITECTES : PAUL-ERIC VOGEL
MAITRISE D'OUVRAGE : NEXITY SEERI / ELOGIE
BET - Pilote : LGX Ingénierie / entreprise générale: Brézillon

SURFACE / BUDGET : SDP : 3730 m2 / 5 600 000€
CALENDRIER : Livraison septembre 2013

MISSION : Maîtrise d’œuvre complète

PERFORMANCES :

RT 2005