57 LOGEMENTS PRIVÉS À ISSY LES MOULINEAUX

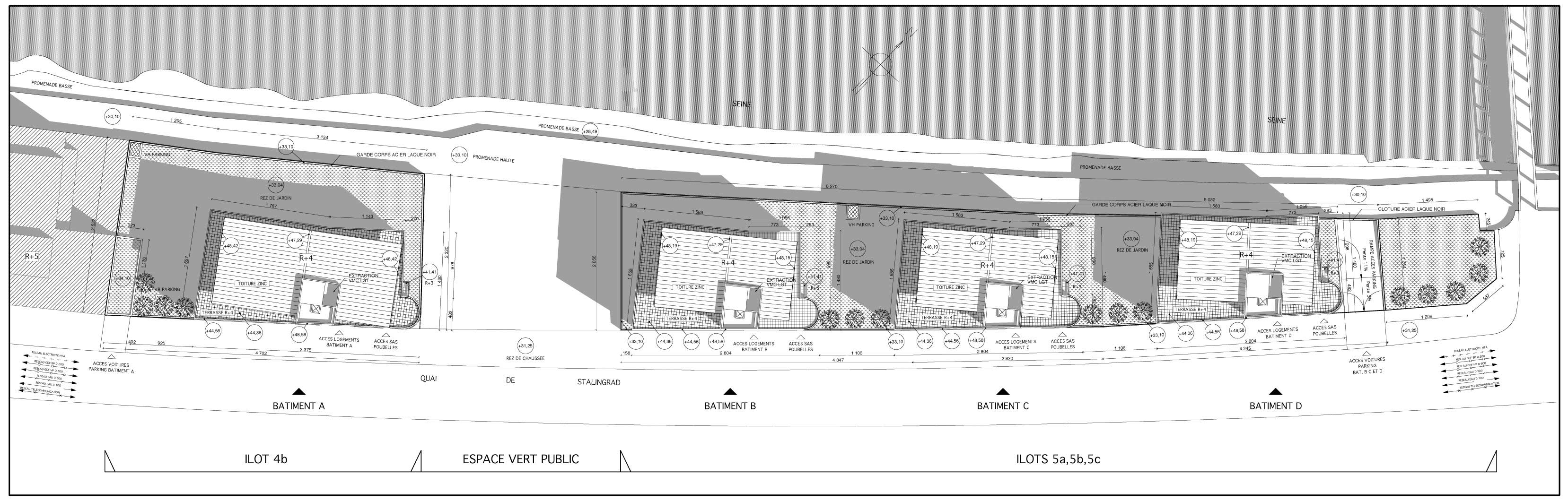
Réalisation d’un ensemble de 57 logements collectifs destinés à l’accession, situés le long du petit bras de Seine, face à l’ile st Germain.
Quatre bâtiments bien dissociés permettent de profiter au mieux de cet environnement exceptionnel et de dégager des perspectives visuelles depuis la colline de la ville vers la Seine.

LIEU : ZAC des Chartreux, 92130 Issy-les-Moulineaux

ARCHITECTES : PAUL-ERIC VOGEL
MAITRISE D'OUVRAGE : Sefri-Cime
BET - Pilote : Abadie

SURFACE / BUDGET : SHON : 5567 m2 / 8 500 000€
CALENDRIER : Livraison juin 2008

MISSION : Maîtrise d’œuvre de conception et suivi de conformité architecturale

PERFORMANCES :

RT 2005